新竹華廈售
首頁
|
申請房仲網站
首頁
新竹大樓
新竹店面
新竹透天
新竹公寓
新竹廠房
新竹農舍
新竹套房
新竹華廈
新竹別墅
新竹辦公室
新竹農地
新竹建地
新竹工業地
首頁
›
新竹華廈
›
東區華廈
›
新竹華廈售-新竹東區民生路211巷
最後更新:35天前
檢舉物件不實
|
列印
|
物件留言
新竹華廈
東區華廈
房屋基本資料
案名
市區巨城旁全新三房平車【築澄聚】
案號
地址
新竹市東區民生路211巷
銷售狀態
帶看中
售價
售2398萬
售2258萬
房屋類型
華廈
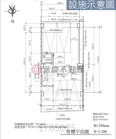
總登記坪數
34.498 坪
格局
3房,2廳,2衛
屋齡
1年
每坪單價
65.45萬/坪
公設比
車位
坡道式平面車位
法拍件
不是
建物所在樓層
3樓/共5樓
管理費
管委會
中庭
電梯
有
是否為凶宅
不是
300公尺內嫌惡設施
面前道路
面寬
縱深
邊間
銷售來源
不動產經紀人/專業仲介
房屋特色
✭一樓為停車空間【預留充電樁】
✭一層一戶格局方正
✭前後陽台採光通風超好
✭優質學區鬧中取靜
✭走路就能到巨城不用排隊等車位
✭生活機能超好
PS.土地尚未分割
坪數說明
建物登記總坪數
34.498
土地登記總坪數
41.745
主建物坪數
20.842
停車位坪數
3.023
附屬建物坪數
2.477
公共設施坪數
8.155
增建坪數
地下室坪數
周邊環境
生活機能
鄰近交通
鄰近地標
公園綠地
鄰近學區
三民國小,三民國中
捷運站
房屋聯絡人資訊
聯絡人姓名
吳東霖
(煩請告知聯絡人,您是在889房屋網看到這則廣告,真摯感恩您的幫忙)
手機
0966-770-728(吳東霖)
Line加入好友
所屬公司名稱
永慶不動產新竹東南加盟店
公司電話
0966-770-728
公司傳真
公司地址
新竹市東區南大路89號
網址
http://www.新竹地區房屋.tw
贊助商廣告
新竹東區民生路211巷-華廈
新竹華廈-0
新竹華廈-1
新竹華廈-2
新竹華廈-3
新竹華廈-4
新竹華廈-5
物件留言
請注意,如果您詢問的內容與物件不相符合或是廣告,經過審核,系統將會直接刪除您的發問內容
檢舉物件不實
相似物件
東區建中一路
大樓_華廈 / 3房
51.75坪
售2399萬
北區延平路一段
華廈 / 3房
45.2坪
售2088萬
東區綠水路
華廈 / 4房
40.38坪
售2098萬
香山區牛埔路
華廈_一樓 / 2房
43.155坪
售2198萬
北區東大路三路
大樓_華廈_一樓 / 3房
54.38坪
售2188萬
東區民族路
華廈 / 5房
65.905坪
售2299萬
本房屋網站為租用式開放房仲網站建置平台,僅提供房屋仲介會員刊登-
新竹華廈售
-等房屋資訊參考,並不涉入任何諮詢、交易。物件(服務)聯絡人公佈的圖文影音資訊若有侵犯智財權或與客戶聯絡交易過程中若衍生民事或刑事等法律問題, 皆與本房屋網站無關。電話:07-7963288
資料處理中,請稍後...
請注意:此案件已下架